| 価格 | 8000万円 | 利回り | 6.12% |
|---|---|---|---|
| 住所 | 神奈川県川崎市中原区上平間 | ||
| 交通 | JR南武線「鹿島田駅」徒歩9分 JR横須賀線「新川崎駅」徒歩13分 |
||
「鹿島田」駅徒歩9分・利回り6.12%・重量鉄骨造のPRポイント
川崎市中原区上平間マンションは、
鹿島田駅と新川崎駅の2駅利用可能な1棟マンションです。
賃貸中で安定した収入が見込めます。
1. 2駅利用可能でアクセス良好
2. 現況賃貸中(満室)で安定した収入が見込める
3. 表面利回り6.12%と高収益
4. 築年月は1986年で、築年数が経っているが管理状態良好
5. 販売価格8000万円で、想定年間収入が489万6000円
物件概要
| 販売価格 | 8000万円 |
|---|---|
| 表面利回り | 6.12% |
| 想定年収 | 489.6万 |
| 所在地 | 神奈川県川崎市中原区上平間 |
| 沿線交通 | JR南武線「鹿島田駅」徒歩9分 JR横須賀線「新川崎駅」徒歩13分 |
| 築年月 | 1986年5月 |
| 土地面積 | 110.08㎡ |
| 土地権利 | 所有権 |
| 建物面積 | 193.70㎡ |
| 建物構造 | 鉄骨造 |
| 階数 | 3階建て |
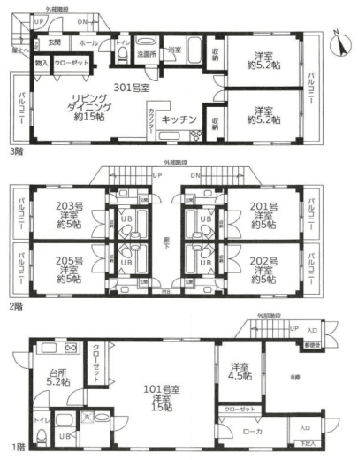
| 間取り | ―― |
| 総戸数 | 6戸 |
| 都市計画区域 | 市街化区域 |
| 用途地域 | 近隣商業地域 |
| 建蔽率 | 80% |
| 容積率 | 200% |
| 接道状況 | 北東側6.5m市道 |
