金町駅徒歩13分 利回り9% RC造

価格 17580万円 利回り 9%
住所 東京都葛飾区柴又3丁目
交通 JR常磐線「金町駅」徒歩13分
京成金町線「柴又駅」徒歩10分

金町駅徒歩13分 利回り9% RC造のPRポイント

1階店舗盛業中

全室定期契約

東南角地

この物件の資料請求をする

物件概要

販売価格17580万円
表面利回り9%
想定年収―― 万
所在地東京都葛飾区柴又3丁目
沿線交通JR常磐線「金町駅」徒歩13分
京成金町線「柴又駅」徒歩10分
築年月1974年7月
土地面積446.27㎡
土地権利所有権
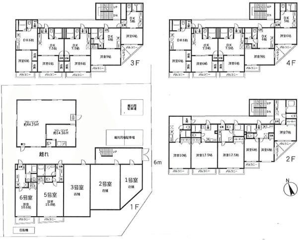
建物面積718.85㎡
建物構造RC造
階数4階建て
間取り――
総戸数21戸
都市計画区域市街化区域
用途地域準工業地域
建蔽率70%
容積率200%
接道状況南側11m公道 東側6m公道

この物件の資料請求をする