東小金井駅徒歩4分 利回り5.66% 平成29年築

価格 15000万円 利回り 5.66%
住所 東京都小金井市緑町1丁目
交通 JR中央線「東小金井駅」徒歩4分

東小金井駅徒歩4分 利回り5.66% 平成29年築のPRポイント

現状1.2階賃貸部分家賃収入 年間 5,374,800円

満室想定家賃収入 年間 8,500,000円

満室想定利回り5.66%

この物件の資料請求をする

物件概要

販売価格15000万円
表面利回り5.66%
想定年収850万
所在地東京都小金井市緑町1丁目
沿線交通JR中央線「東小金井駅」徒歩4分
築年月2017年9月
土地面積124.49㎡
土地権利所有権
建物面積244.21㎡
建物構造木造
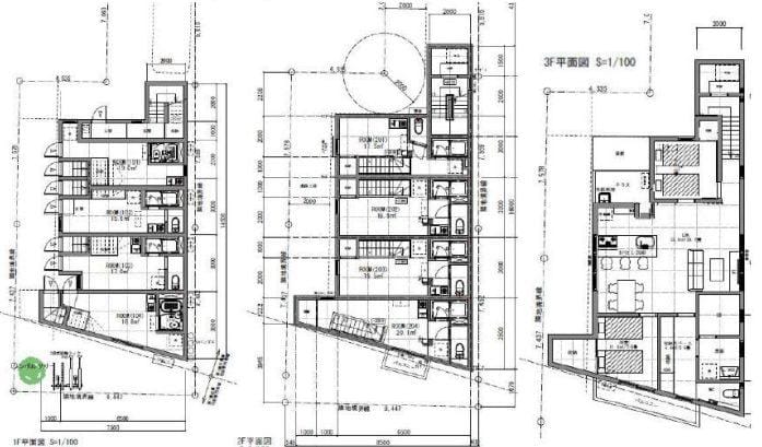
階数3階建て
間取り――
総戸数8戸
都市計画区域市街化区域
用途地域第1種低層住居専用地域
建蔽率60%
容積率200%
接道状況――

この物件の資料請求をする