築7年・「武蔵白石」駅徒歩10分・利回り7.41%

価格 13400万円 利回り 7.41%
住所 神奈川県川崎市川崎区浅田3丁目
交通 鶴見線「武蔵白石」徒歩10分
東海道線「川崎」バス15分

築7年・「武蔵白石」駅徒歩10分・利回り7.41%のPRポイント

★価格変更あり★
<変更前>13,600万円 ⇒ <変更後>13,400万円

この物件の資料請求をする

物件概要

販売価格13400万円
表面利回り7.41%
想定年収993.6万
所在地神奈川県川崎市川崎区浅田3丁目
沿線交通鶴見線「武蔵白石」徒歩10分
東海道線「川崎」バス15分
築年月2017年1月
土地面積196.61㎡
土地権利所有権
建物面積285.21㎡
建物構造木造
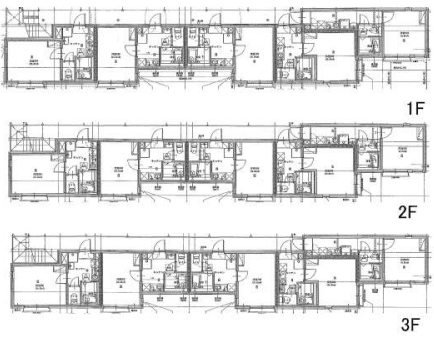
階数3階建て
間取り1K
総戸数15戸
都市計画区域市街化区域
用途地域準住居地域
建蔽率60%
容積率300%
接道状況南西側約12.9m公道に約10.28m接道

この物件の資料請求をする