| 価格 | 12000万円 | 利回り | 7.31% |
|---|---|---|---|
| 住所 | 千葉県千葉市若葉区桜木三丁目 | ||
| 交通 | 千葉都市モノレール「桜木駅」徒歩12分 |
||
桜木駅徒歩12分 利回り7.31% 築浅物件のPRポイント
想定利回り7.31%
プロパンガス、上水道(公営水道)、下水道(公共下水)、駐車場有
物件概要
| 販売価格 | 12000万円 |
|---|---|
| 表面利回り | 7.31% |
| 想定年収 | ―― 万 |
| 所在地 | 千葉県千葉市若葉区桜木三丁目 |
| 沿線交通 | 千葉都市モノレール「桜木駅」徒歩12分 |
| 築年月 | 2017年9月 |
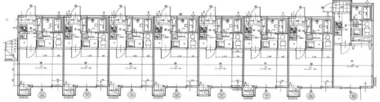
| 土地面積 | 407.91㎡ |
| 土地権利 | 所有権 |
| 建物面積 | 349.08㎡ |
| 建物構造 | 木造 |
| 階数 | 2階建て |
| 間取り | 1K |
| 総戸数 | 16戸 |
| 都市計画区域 | 市街化区域 |
| 用途地域 | 第1種低層住居専用地域 |
| 建蔽率 | 50% |
| 容積率 | 100% |
| 接道状況 | ―― |

