| 価格 | 3000万円 | 利回り | 10.17% |
|---|---|---|---|
| 住所 | 千葉県成田市三里塚 | ||
| 交通 | JR成田線「成田」バス20分 |
||
成田駅バス20分 利回り10.17% 満室稼働中のPRポイント
月額満室時収入 254,400円
年間収入3,052,800円
利回り10.17%
物件概要
| 販売価格 | 3000万円 |
|---|---|
| 表面利回り | 10.17% |
| 想定年収 | 305.2800万 |
| 所在地 | 千葉県成田市三里塚 |
| 沿線交通 | JR成田線「成田」バス20分 |
| 築年月 | 1992年11月 |
| 土地面積 | 307.43㎡ |
| 土地権利 | 所有権 |
| 建物面積 | 198.74㎡ |
| 建物構造 | 木造 |
| 階数 | 2階建て |
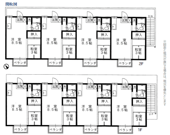
| 間取り | 1LDK |
| 総戸数 | 8戸 |
| 都市計画区域 | 市街化区域 |
| 用途地域 | 第1種低層住居専用地域 |
| 建蔽率 | 50% |
| 容積率 | 100% |
| 接道状況 | ―― |



